CHEF'STORE | Greenville, NC
SWC Greenville Blvd & Mall Dr
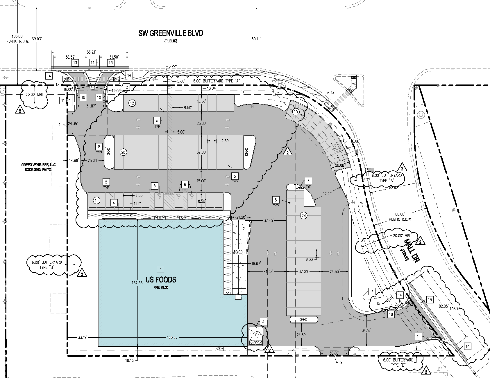
This 18,200 square foot build-to-suit for US Foods Chef Store is located in Greenville, NC off Greenville Blvd & Mall Dr.
SWC Greenville Blvd & Mall Dr
This 18,200 square foot build-to-suit for US Foods Chef Store is located in Greenville, NC off Greenville Blvd & Mall Dr.
915 Greenville Blvd SW, Greenville, NC 27834
SWC Greenville Blvd & Mall Dr
Year Built Sold
Acres 2.23
Total Square Feet 18,200
Leasing Contact Ryan Gaston
Email rgaston@barclaygroup.com
Phone 480.296.4286